Корзина
0 товара

0.-

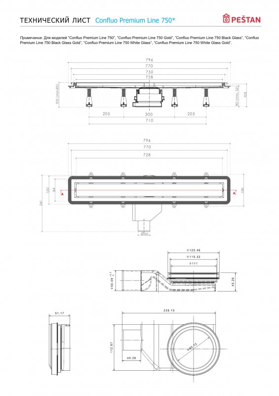
Линейный трап Pestan Confluo Premium Black Glass Line 750

Просмотренные товары
Grafite White 45*45
Grafite White 45*45 цена по запросу