Корзина
0 товара

0.-

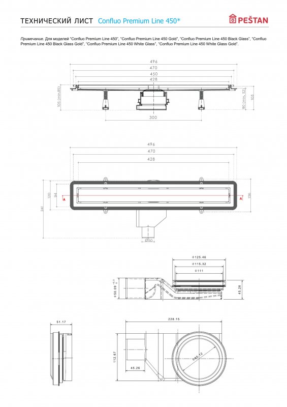
Линейный трап Pestan Confluo Premium Black Glass Line 450

Просмотренные товары