Корзина
0 товара

0.-

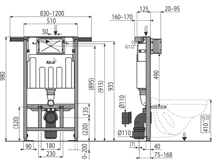
Скрытая система инсталляции для сухой установки AM102/1000

Просмотренные товары
TOP
Dual Gres Chic
Dual Gres Chic
от Уточняйте у менеджера
за квадратный метр