Корзина
0 товара

0.-

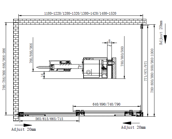
Душевой уголок Cezares PREMIER-SOFT-AH-1 120х80 см

Просмотренные товары